Sold By
- Loading...
- Photos
- Description
House in Albany
Popular Property for Subdivision or Land Banking
- 3 Beds
- 1 Bath
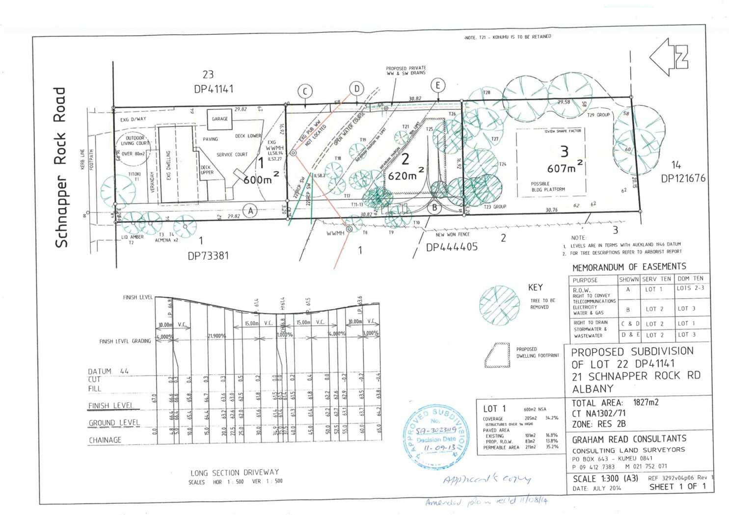
A rare opportunity to purchase 1,826m2 land in popular Albany. The resource consent granted from council is for the existing 1960's house on a 600m2 section with two additional sites, 620m2 and 607m2 respectively. This means that you have the option to renovate the existing home, landscape the gardens, leaving you with a well proportioned property in a handy location. Or perhaps, you would like hold as a rental and build two new houses on the back. Or just simply, you can keep the property as land bankers. The options and potential are endless! It is also centrally located to all the amenities on the North Shore and has access to motorway, public transport, Westfield Shopping Centre, Massey University, quality schools such as Albany Primary, Albany Junior & Senior High School, Kristin and Pinehurst Schools.
This property will suit anyone from investors to builders or developers.
Call Jimmy on 021-659 668 or ddi: 09-947 6089 NOW!
- Close To Schools
- Close To Shops
- Close To Transport
- Single Garage
- Subdivisible
PNH23125
120m²
1,826m² / 0.45 acres
3
1
